Product manual
- Product Overview
- Application Scenario
- Certificate
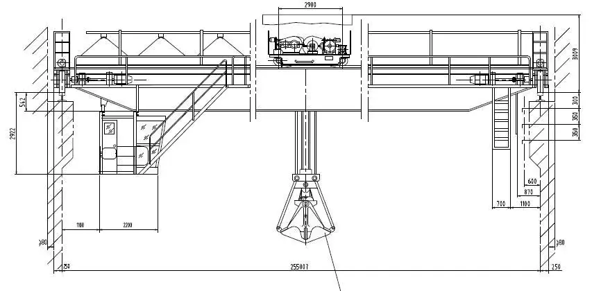
QZ grab double girder bridge overhead crane is a special crane which take grab bucket as spreader, and can finish many special work of loading and unloading, stockpiling, reshipment and so on.
QZ model double girder bridge overhead crane is heavy work; the working-level is A6, A7. Rated lifting weight is 5~25T and the grab opening direction have two kinds of parallel and perpendicular to main beam. The capture device is four-rope grad with double drum, simple structure, reliable operation.
Lifting Capacity |
T |
5t |
10t |
16t |
20t |
|
Span |
m |
10.5-31.5m |
||||
Speed |
Lifting |
m/min |
40.1 |
40.7 |
41.8 |
48.6 |
Traveling of Trolley |
44.6 |
45.6 |
43.2 |
|||
Traveling of Crane |
93.7/86.4 |
76/89 |
89/87.3 |
87.3 |
||
Operational Model |
Cabin; remote control |
|||||
Working Duty |
A6 |
|||||
Steel track recommended |
43kg/m or QU70 |
|||||
Power Supply |
Three-phase A.C. 380V, 50Hz |
|||||
MAIN COMPONENTS
1.End Beam
The end girder is connected with the main girder by doltsand nuts for easy transportation and installation.
2.Main Beam
Structure: Welding structure of steel plate and I-steel
Technology: One-off forming U-shaped groove
3.Grab Bucket
Grab can open and close at any height. Grab only applies to granular material which on the natural state, when grab underwater items or special items.
shall be mention particular when ordering.
4.Electric Control System
The high-strength frame is welded by high quality profile, and the high-quality cold rolling plate is finished by the CNC machine.
(Interior decoration is made by lining the frame with fire, heat insulation and soundinsulation, and the decoration is made of medium density board and aluminum plastic plate or with thinsteel plate riveting.)
QZ model double girder bridge overhead crane is composed of four parts: the box type crane bridge,Crane travel mechanism, crane power electrical device and grab. Lifting capacity includes the dead weight of the grab.
Safety protection system:
1. Overload protection in the event of overload, the hoist unit switches off and only the lowering motion is possible.
2. Long and cross travel limited by means of preliminary and final limit switches or Wireless anti-collision device.
3. Anti-falling protection for the Three-in-One electric motor of trolley and crane prevents from accidental falling.
4. All movements can be switched off by actuating the emergency-off switch at the control station via a main contact.
5. High quality long time bearing polyurethane materials buffer fixed at the end of trolley travelling and crane travelling to prevent over traveling.
6. Safety hook latch used for avoiding the lifted material out off from the hook.
7. Audible and visual alarm device to inform the person stay near by the travelling crane.
8. Rain Cover for lifting mechanism of outdoor cranes, electric cabinet and driving mechanism
9. Protective earth conductor is fitted as standard.
10. Voltage lower protection system.
11. Current overload protection system.